Двухкомнатная квартира 51,21 м2 по ул. Балашиха Дмитриева улица,1 за 9546212 руб.

Двухкомнатная квартира по ул. Балашиха, Дмитриева улица,1 в Москве
Цена 9 546 212 р. (186 413 р./м2)
Подать заявку на ипотеку
Адрес Балашиха, Дмитриева улица,1
Этаж 15/17
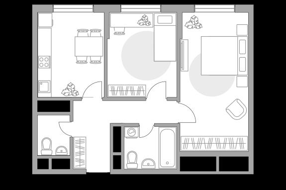
Площадь общая 51,21 м2, жилая 26,83 м2, кухни 10,71 м2
Кол-во комнат Двухкомнатная
Продается 2-комн. квартира, площадью 51.21 м2 в монолитно-кирпичной новостройке в 25 мин. транспортом от м. Щелковская. Возможен вариант покупки с использованием ипотечных средств, есть рассрочка. Жилая площадь 26.83 м2, кухня 10.71 м2. Площадь комнат: 16.67/10.16 м2, квартира без отделки, окна выходят на улицу. Квартира располагается на 15 этаже 17-этажного дома в ЖК Новая Алексеевская роща. Застройщик - ООО "СЗ "Гранель БТ", сдача дома - III квартал 2018 года, высота потолков 2.8 м. Дом оборудован грузовым и пассажирским лифтом. Отдельная многоуровневая парковка. Инфраструктура: детский сад, детские площадки, супермаркет. ЖК «Новая Алексеевская роща» расцветает в Балашихе в непосредственной близости от исторических, заповедных мест. Современное жилье среди природы, удобный для жизни район с развитой инфраструктурой - ваш выбор. Продажа квартир в ЖК «Новая Алексеевская роща» уже началась. Первые дома будут сданы уже летом 2018 года, а полное завершение проекта назначено на 2021 год. Жилой комплекс возводится в Подмосковье, по адресу: г. Балашиха, мкр. Пехра-Покровское, ул. Лукино, вл. 51, корпуса 7, 8. Несмотря на относительную близость ЖК к Москве (около 7 км до МКАД по Щелковскому шоссе) , транспортную доступность не назвать идеальной. Все дело в заторах на дорогах, которые образуются на протяжении практически всего дня. Автомобили движутся по Щелковскому шоссе или проходящим рядом шоссе Энтузиастов, Балашихинскому. В 500 м от места застройки находится остановка общественного транспорта. До ж/д станции и метро можно добраться на автобусах, маршрутных такси. В будущем транспортная инфраструктура района улучшится - в планах правительства Подмосковья строительство ветки скоростного современного трамвая. ГК «Гранель» запустила акцию «Квартира без головной боли». Приобретая жилье у компании в Московской области, покупатель получает в подарок полис добровольного медицинского страхования (ДМС) - пакет «Премиум». Покупку жилья можно совершить с помощью 100%-й оплаты, в том числе ипотечного кредитования. На приобретение квартир с использованием рассрочки, траншевой ипотеки и ряда других программ, акция не распространяется. Позвоните и узнайте условия покупки прямо сейчас!
Описание дома
Этажность дома 17
Объявление № 23194448
Дата подачи:
26 августа 2025 г. 12:03
Дата обновления:
10 октября 2025 г. 5:24
Просмотров 6 Хотите продать быстрее?

Продавец
Отдел продаж
Показать номер телефона
Пожаловаться
Комментарии:
Добавить